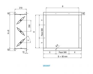
SR200T
Serranda di regolazione passo 200 con alette tamburate

Prodotto
SR200T
Costruzione
Telaio in lamiera d’acciaio zincata, spessore 1,5mm
Alette tamburate in lamiera d’acciaio zincata, spessore
0,8+0,8 mm
Passo alette 200 mm
Levismi esterni per il comando della serranda
Boccole in nylon resistenti fino a 70°C
Perni di comando Ø 12 mm zincati
Tenuta laterale con lamelle in alluminio
CAPITOLATO
Serranda di regolazione in acciaio zincato passo 200 mm con alette tamburate
Serranda di regolazione in acciaio zincato passo 200 mm con alette tamburate
FISSAGGIO
Mediante bulloni lungo le flange
Mediante bulloni lungo le flange
ACCESSORI
Comando manuale CM-20 Servomotore 24V o 230V
Comando manuale CM-20 Servomotore 24V o 230V
Selezionare la casella accanto ai documenti che si desidera inviare
- SR200T646.72 KB646.72 KB




















